One of Long Island City’s most interesting new architectural designs, the sleek Corte at 21-30 44th Drive gives an Expressionistic twist to the High Modernist aesthetic, the Seagram Building by way of Malibu. Created as a series of interlocking cubes and diagonal facets that project and recess at the upper levels, the building’s taut tinted glass skin creates a subtly dramatic presence on its block.
An elegant lobby with a lofty wooden ceiling and sculpted reception desk are finishing touches to this collaboration between Argentinian architect Dieguez Fridman and the distinguished New York-based firm of Beyer Blinder Belle.
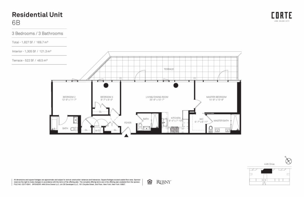
Featuring three bedrooms and three baths, apartment 6B’s foyer opens into a large light-flooded living/dining room with a spacious kitchen in an adjacent alcove. Hardwood floors, central air and stainless steel appliances including a dishwasher complement the architecture.
A master bedroom incorporates a full bath and elegant finishes; two more bedrooms anchor the floor plan opposite the living/dining room. Ample closet space is provided throughout while a spacious balcony-like terrace provides further opportunities to relax, entertain or create a private garden space.
Corte’s amenities include a roof deck, residents’ lounge, 24-hour doorman, fitness center, and children’s playroom. Parking is available for sale.
Long Island City’s Hunters Point neighborhood mixes high rise and low-scale construction, ranging from converted warehouses to new builds to tree-lined blocks of row houses. The district’s cultural offerings include the renowned MoMA PS1 and the block-long Murray Playground. Corte is adjacent to one of Queens’ major commuter hubs, with the E/M trains a block away and the 7 train a block past that, making Midtown Manhattan and Grand Central a 15-minute commute.
Listed by Juan C. Castellanos and Kayla Lee of Modern Spaces, the home is asking $1.81 million.
Listing: 21-30 44th Drive, 6B | Broker: Modern Spaces GMAP





































